
Habersham County Sheriff Joey Terrell has advocated for a new jail for the last three years, and he says the need is just as strong today as it was in 2019. He’s asking the county commissioners to find a way to make it happen, and for the public to realize what a pressing issue it is.
The current county jail, which was built in the late 90s, was built in the style of a jail from the 60s and 70s according to Terrell. He says it hasn’t aged well in its 25 years. Terrell and former county commissioners appealed to the public in 2019, citing the issues that the jail faced on a day-to-day basis and presenting the same argument they’re presenting today: if the county doesn’t get a new jail, they’re going to get sued.
The need for a new jail
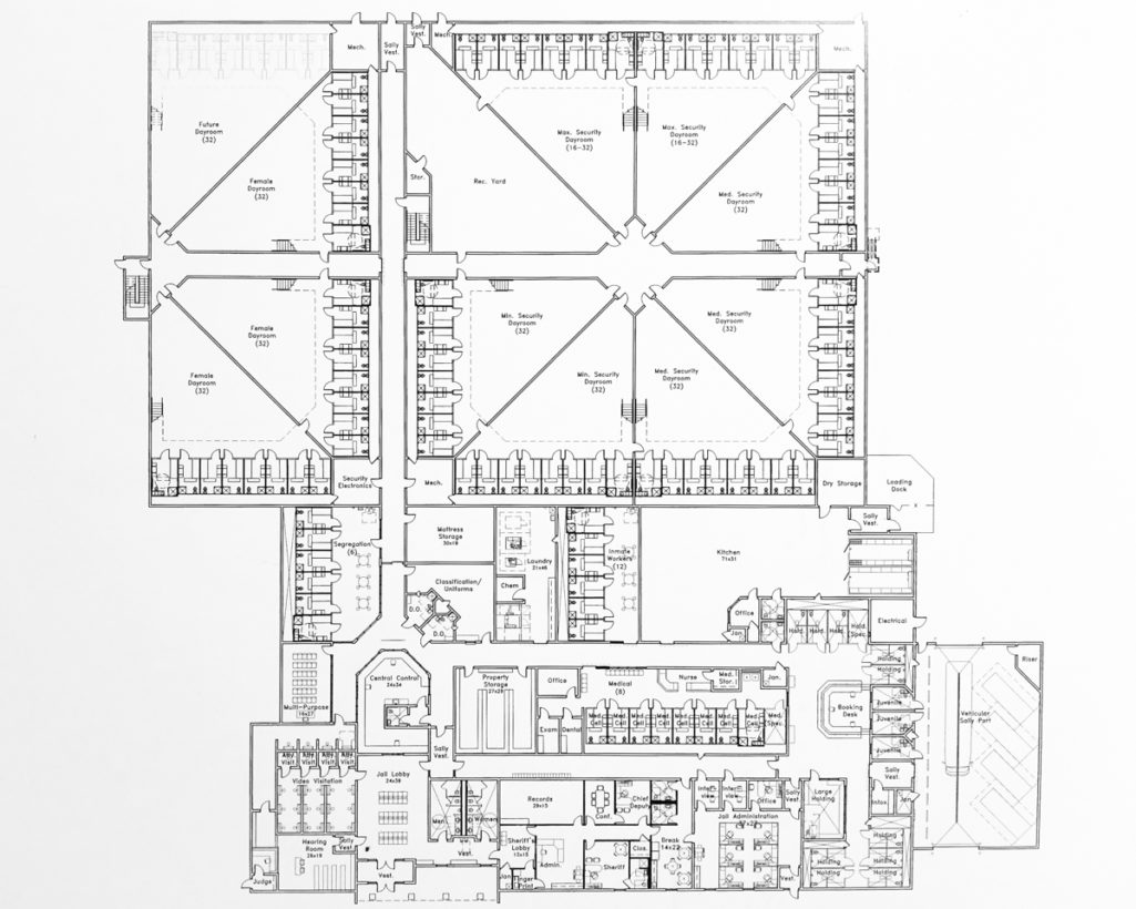
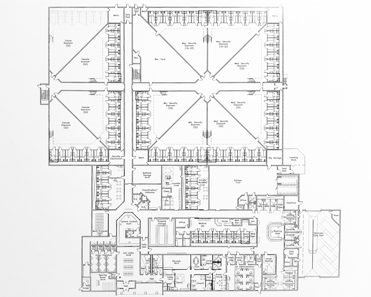
Terrell says that there is a slew of reasons the county needs a new jail, but the issues boil down to safety, both of those who are imprisoned at the jail and the officers working there. The major issues at the county jail are that it doesn’t meet regulations on separation of people incarcerated, nor does it meet airflow, privacy or accessibility requirements.
The current jail isn’t built in a way that takes modern case law into account, which requires that people who are incarcerated are separated by the offense that has them in the jail.

Terrell says that there are two types of separation the jail has to take into account: minimum and maximum offenses. Mimunim offenses surround misdemeanors, while maximum offenses include felonies. By law, people with minimum and maximum offenses have to be separated for their safety.
“They [people incarcerated] should go with like people who have that same classification,” Terrell says. “As our jail is set up, we can’t do that … they’re all mixed together.”
Because of the limited number of spaces they have to separate people, called classification, they struggle to separate them. It isn’t just based on charges, either. Other people involved with the same crime that are incarcerated need to be separated from each other, people of different sexes need to be separated and people who have conflicts sometimes need to be separated.
“We have to try and do our classification by … upstairs and downstairs, and we try … within that do the best we can with classification,” Terrell says. “We try and keep the extreme [separate], we don’t put a child molester in with a 20-year-old.”
Because of that separation, just because the jail has 160 beds doesn’t mean all 160 can be used when people are being separated from each other. The jail can be full before every bed is full— which means the HCSO has to house out people who are incarcerated to other facilities, something that cost the department around $720,000 in the 2018-2019 fiscal year, according to the sheriff’s office.
He says that even though they do their best to keep people separated in terms of cells, it’s not possible to keep them completely separated at all times. There could be a time they’re in the day room together or sharing another space. But Terrell says there isn’t enough space for them to separate in that way, too.
“We don’t have the facility to not do that, so that’s the number one [problem],” Terrell says. “That is the biggest thing that can get us because the Supreme Court says you shall, and you will, classify inmates for their protection. That’s what it’s for, that’s the biggest thing, to keep them protected. And we fail at that. We fail at that because of our facility.”
The jail also doesn’t meet air circulation standards, which allows illness to breed in the jail, and it isn’t Americans with Disabilities Act (ADA) compliant, meaning many parts of the jail are not accessible for people who have disabilities.
How likely is a lawsuit?
Terrell says that a lawsuit could be lurking around the corner at any minute and that people who have been incarcerated at the Habersham County Jail have come close to a successful lawsuit before.
The best thing they can do right now, other than working with what they have, is to keep the people who are currently incarcerated at the jail as comfortable as they can be so that they, according to the sheriff, aren’t looking for things to sue the county over.
“I learned in the Sheriff-elect academy if you keep their [individuals who are imprisoned] bellies full, it cuts down on complaints,” Terrell says. “So if them allowing them to buy Snickers bars and Mountain Dew keeps them from suing us because we’re violating their constitutional rights, I think that’s a good trade-off.”
Terrell says that either the county finds a way to purchase a jail, or someone sues the county and the federal government orders the county to buy a new jail— one that he says will be much more expensive than the one they’ve proposed. It’s just a waiting game to see what happens first.

How can the county afford it?
The short answer is that no one knows for sure.
After many conversations and questions asked of county government officials, there just isn’t a clear-cut answer on how the county can afford a multi-million dollar jail. But they all seem to agree that the project needs to happen.

In 2019, the county put a jail bond referendum up for a vote that would raise property taxes by 1.38 mills, which at the time would have cost the average homeowner approximately $72 more per year. Voters turned it down, and current Commission Vice-Chair Bruce Harkness completely opposes any measure that would raise property taxes.
The project was estimated to cost around $32 million in 2019. Today, Terrell says the costs likely sit closer to $46 million.
“Habersham county has always had the issue of kicking the can down the road,” Terrell said. “They’ve always wanted to kick the can down the road and let somebody else worry about it because we didn’t want to spend the money.”
Terrell says that the problem is going to have to be addressed in time, whether the county and community want to address it or not. He says it’s a matter of getting ahead of the problem, and he thinks a Transporation SPLOST could open up the funds to make it happen.
“How do you pay for a new jail? Well, the TSPLOST could help with that,” Terrell said. “There’ll be money freed up in SPLOST that could help make those payments on a new jail. It would there be money in our budget that could help go to that.”
RELATED: Habersham Commissioners discuss reintroducing TSPLOST
But even county commissioners who have supported adding a TSPLOST to free up SPLOST funds for other projects aren’t sure that would be enough.
“Maybe in the future, it could open up funds,” Commissioner Dustin Mealor told Now Habersham. “The problem with the jail is the sheer cost of the project itself would almost consume the entire amount of SPLOST, but what I think would be better [for the] community would be if we could figure out a way to phase in a jail project so that we’re paying for it and finishing a certain phase of that project and then moving on to the next phase.”





