
The Cleveland City Council has approved a rezoning change that will enable the Old Talon property to be developed into housing.
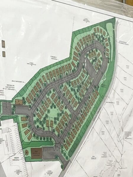
Mountain Craft Builders LLC requested that the property at 19 Campbell Street be rezoned from B-2 Highway Commercial to PR-1 Planned Residential Development. Agent/Developer Larry Adams said they plan to develop a gated residential community called Talon Village. The plan calls for 93 lots, with 27 single-family one-bedroom homes and 66 two- and possibly three-bedroom homes.

Adams said Mountain Craft Builders will cooperate with the Georgia Rural Workforce Housing Initiative, which limits the cost of housing to $250,000.
“This is not a rental community. There will be no short-term rentals. There will be no long-term rentals. It is an owner-occupied community,” said Jonathan Adams, also of Mountain Craft Builders.
Tied votes
Cleveland’s Economic and Planning Director, Tom O’Bryant, told the city council during a public hearing Tuesday night that the planning commission held a hearing on the request. Two planning commission members recused themselves from voting, and the two remaining members voted to deny the zoning change.
This is the first request under Cleveland’s recently approved new zoning ordinance and map, O’Bryant said.

After hearing from the developer and with no one expressing opposition during the public hearing, the council voted to approve the request following a recommendation by Councilman Jeremy McClure. Council members McClure and CJ McDonald voted to approve, but members Annie Sutton and Nan Bowen voted no.
With the vote tied, Mayor Josh Turner voted yes for approval. The council placed some conditions on the approved rezoning.
According to Mayor Turner, Mountain Craft Builders still has to close on the sale of the 10.68 acre property before the development can proceed.





